做个好的电影美术师,要专业基础打牢,要理解电影,最重要的还是要积累生活。
过去的四十多年,电影美术大师杨占家一直在“为他人做嫁衣裳”。
从《红楼梦》的怡红院到《霸王别姬》的梨园戏班,从《夜半歌声》的西洋建筑到《西楚霸王》的阿房宫,从《卧虎藏龙》的纵横屋顶到《满城尽带黄金甲》的富贵宫廷……这些耳熟能详的电影里不太引人注意,却又为电影情节发展、演员表演提供背景支撑的场景,都出自身处幕后的电影美术师杨占家之手。


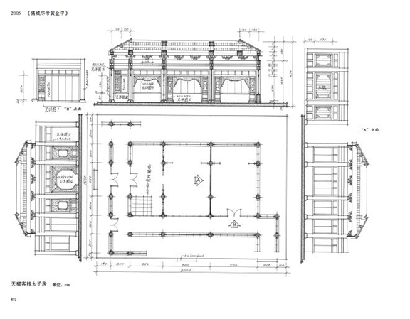
(上)《卧虎藏龙》设计图,(下)《满城尽带黄金甲》设计图
杨占家,国家一级电影美术师,北影厂顶尖资深电影美术师,任教于中央工艺美术学院(现清华大学美术学院)建筑美术系。被认为是经验丰富、方法独到、专业功底深厚,既懂电影美术又懂建筑美术的“国宝级电影美术大师”。
自幼爱好画画的杨占家,1936年出生于天津武清,后进入中央工艺美术学院学习建筑设计,毕业后留校任教。经历了两年部队劳动,自1973年起,杨占家参与“南谢北谢”导演的电影《海港》,开始从事电影美术创作。
四十多年,他以平均每年一部的高产出,先后独立操刀或参与四十多部影片的美术设计,和李安、谢晋、陈凯歌、冯小刚等知名导演都有合作。
为什么能四十多年能坚持一件事?“我可能就是这样的人,老一辈美术师都是这样。”杨占家说自己习惯了吃苦,勤勤恳恳干了一辈子,“本来想干到八十,结果干到七十九腿不行了”。
耄耋之年,杨占家因长期绘图工作,颈椎压迫神经双腿行动不便。但这位朋友眼里“知识分子的头脑,过着农民的生活”的老人,仍然很乐于“为他人做嫁衣裳”——向年轻人分享自己几十年摸爬滚打实践出来的电影美术设计经验。他说做个好的电影美术师,要专业基础打牢,要理解电影,最重要的还是要积累生活。
杨占家把过去自己绘制的电影手稿——建筑设计图、气氛图等珍贵资料整理出来,这些绘制精细的图纸被汇集在《杨占家电影美术设计作品集》(全两册)里,他希望这些手稿还能惠及后人,做个参考。
以下是专访对话:
站酷网:从小爱好绘画,怎么启蒙的?后来为什么选定建筑美术方向?
杨占家:我1936年出生,小时候农村很苦很穷,想画画,可是没有纸和笔,农村有磨坊的白灰,我就在地上画,墙上画。没事就从村东头画到村西头,什么都画,房子、牛、羊、鸡、鸭。小学开始有美术课,我开始搞墙报,很花哨,墙报被县文化馆的馆长看到了,当时就跟老师定,说这个学生毕业以后到文化馆来工作。后来想了想还是想继续上学,就考了中学。
中学有个美术水平很高的老师,听说老师和齐白石先生还见过面,帮我奠定了美术基础。高中一边学文化课,一边抽时间画画,很幸运地考上了中央工艺美术学院。
考中央工艺美术学院的时候,是我第一次来北京,第一次参加专业的美术考试,好多考生都参加过培训班,铅笔都是削好的,看上去很专业。我就带了铅笔盒橡皮,没想到后来还考上了建筑美术系。当时有个片面的想法,觉得单画画没什么意思,和建筑结合更有意义。但其实不对,单画画也可以做很好,不过从那时候起开始和建筑美术结缘了。
站酷网:从文化大革命期间在部队劳动锻炼,到调回北京留在北影厂,这段经历是怎么样的?
杨占家:在部队劳动锻炼了大概两年多,劳动之余时不时也搞点发明创造。比如当时我们给部队送水,走15里地,土路用三轮车太颠簸,水会洒掉。我就在农村小平板车上面弄根长长的竹竿,搭在车横轴上,上面做好多钩,钩上安个弹簧,每个钩里吊一个水桶,水桶里放一个小木板,这样送水,一次可以送六桶。大家看了都挺高兴,觉得主意不错。
后来接到通知调回北京,到北京电影制片厂,开始从搞美术改行到做电影。刚接到通知也不知道回北京做什么,后来才知道是当时南谢北谢(谢晋、谢铁骊)一起拍了《海港》,效果不是很满意,叫包括我在内的三个工艺美院的留校生回来帮忙。我很快进了摄制组,被要求解决电影的色彩问题。我们就用颜色调各种色标,搭布景的时候把色标给搭布景的说用什么颜色好,后来布景颜色就丰富多了,之前北影厂的颜色都很简单,比如说灰墙,就用墨汁加白灰一涂,这就变成灰。但其实灰有非常多种,偏暖的灰,偏冷的灰,偏红的灰,偏蓝的灰……可是墨汁加白灰老是那个灰,背景的颜色就很单调。我们去了以后丰富多了,最后影片拍出来,效果不错。北影觉得重拍我们起了作用,实际也不是,我们只是其中一小部分,只提供了色彩基础。
拍完我还动摇想离开北影回学校,谢晋导演劝我的一些话挺管用。他说你看咱们这么多文艺形式,最普及的,老人、小孩都爱看的,有文化没文化的也都能看的,就是电影。这么好的文艺形式你不干你干什么?我一想也对,我原来的专业是建筑美术,但那是搞大型公共建筑里头的陈设、装饰,不是太普及,所以后来就做电影美术到退休,40多部片子,有的是我自己做,有的帮别人做美术。
站酷网:从1981年《原野》开始涉足原著改编的电影,相比其他,原著改编型电影在美术发挥上创作空间更小,怎么做到遵从原著又有所创新?《杨占家电影美术设计作品集》新书里,有非常多珍贵手稿。像电影《红楼梦》,有六部,大观园、荣国府都是大工程,美术设计工作是怎么开展的?
杨占家:当时找了好多地方,都没合适的院子可以拍《原野》,后来找到一个村旁边有个坟地,有大树,如果要是做一个院子,很合适。当地书记答应了,也帮忙做了村民沟通工作,临时把坟地挪开,然后在那里做了东北大院子,一个土围墙,有大门,四角还有小楼,三间正房,三间东厢房,三间西厢房。这些都是根据原著,加上对生活的体验做出来的,做得很像的,因为都是用当地的材料,比如苞米楼子。
设计这些场景要先研究原著。电影《红楼梦》是北影拍的,我们准备了两年,拍摄了三年,前后一共五年。两年筹备期间研究原著,从里边摘有关布景、服装、道具的描述,写得很清楚,分门别类建立卡片,根据卡片再进行设计。首先设计的就是大观园,电影里大观园的戏特别多。根据曹雪芹的描述把场景设计出来,我花了很长时间,因为得把三大部都读完。
我们画了一个大观园平面图,里头好多园,潇湘馆、怡红院、大观楼、稻香村等等都在什么位置,曹雪芹都有解释,我们就都画出来,很费劲。

《红楼梦》怡红院氛围图
然后根据平面图捋哪个地方有戏,比如怡红院有戏,再单独把怡红院设计出来。里面有个问题,要是完全按照原著的布景,场景不会很丰富,容易单调。比如刘姥姥进大观园,宝玉主要的戏就是三间屋,刘姥姥怎么会迷糊?为了戏剧性,会根据想象,在摄影棚搭场景,接外景怡红院的门。一推门就是长廊,长廊的头上画一个侍女像,刘姥姥以为丫鬟是真的,就打招呼。我们尽可能把画画得很像,像真人站在那,旁边一排格栅。刘姥姥没注意,格栅打开进去了,进去后是一个厅,她又通过厅的窗看到还有一个厅,又进那个厅,后来发现一个穿衣镜,醉醺醺地照镜子,一下没注意镜子一转又进到另一个屋。我设计了一个中间有轴的穿衣镜,到里头才躺在宝玉床上,大睡。
站酷网:《红楼梦》有电视剧版,电影版场景设计如何突破?
杨占家:在做电影版的时候,我们特别注意背景不要夺演员的戏,布景设计的时候,考虑演员在前面表演,后面尽量不花花绿绿,所以电影版背景颜色都比较统一。比如柱子,没用北京那种大红柱子、绿窗户,选用黑或者棕的柱子,和白墙搭。也因为这个,外景选了上海大观园,接近苏州园林的建筑。
除了大观园,另一个主要的场景是荣国府,北影厂现在还保留着荣国府的建筑场景,是我设计出来的。当时搭这个景有两个方案,一个是在郊区稻香湖,一个是在北影厂。北影厂一进门左手边有一片桃树林,当时我们看中了那块地方。电视剧版《红楼梦》荣国府建筑尺寸比较小,电影可以夸张一点。荣国府做出来以后一进门,两个大核桃树,之前的一部分桃树也保留下来。要是完全按照原著,一进门空空的,生活气息和乐趣会少很多。

《红楼梦》贾府大门气氛图
站酷网:四十多年,四十多部作品,涉及很多电影类别,有跨越多朝代的古装,92年 的《霸王别姬》、99年的《卧虎藏龙》,也有现代故事的《唐山大地震》,还有2007年《木乃伊3》这样的科幻类,在反映不同年代、不同题材的电影中,怎样让自己的设计思路随意切换?设计的来处是什么?
杨占家:题材不一样,设计思路也肯定不一样。冯小刚拍《唐山大地震》,美术是霍廷霄,他找了我。我高考考场在唐山,知道唐山那个年代的房子、街道是什么样子,印象很深。唐山是一个矿区,和普通城市不一样,到处是矿井之类的,正好《唐山大地震》整个美术组里就我去过唐山,想起那些场景,很快就画出了布景。生活的积累,多重要。《木乃伊3》我做了一部分工作,没有全程参加,画的一些布景和道具。
站酷网:您提到霍廷霄先生,也是这次《杨占家电影美术设计作品集》新书的主编,之前也有不少电影的合作。
杨占家:拍《霸王别姬》的时候,我有请他来做副美术。包括后来《白鹿原》、《苏乞儿》、《满城尽带黄金甲》等,我画图,他和导演联系,我们有过不少合作。这次出书也是考虑电影学院教材需要,之前也出过一本《电影美术师杨占家作品集》,就是北京电影学院美术系教学的参考书之一。新出版的这本书是大开本,年轻人很缺的尺寸概念,我也在里面画出来了,柱子多高、多粗,可以给大家做参考。

《霸王别姬》程蝶衣家 气氛图
站酷网:之前是方格纸上画平面图、施工图,现在流行计算机制图,怎么看电影美术创作方式的变化?
杨占家:以前电脑不普及习惯用手绘,后来电脑普及了,我发现有好多优点是手绘没有的,比如摄制组的设计经常要改,手绘改一次太麻烦,有时候改的面积太大,干脆就重画,特别费事。电脑改图特别容易,原来设计大厅是五间,把它改成七间,很简单,几秒钟就复制粘贴出来了。建筑在我脑子里,助手可以帮我操作,图画很快,改也很容易,保存也方便。
不过手绘的技能还是很必要,你得懂建筑的结构和建筑尺寸,得能一笔一笔画出来。现在很多年轻人会把照片拼拼凑凑搞一个场景概念图,但具体什么结构、尺寸、材料、摄影棚怎么用,不太清楚,这样很不好。
站酷网:怎么理解电影美术师在电影创作中的角色?怎样用场景设计为电影情节、演员表现提供更大的艺术创作空间?
杨占家:导演把美术师和摄影师比作“左膀右臂“。美术要把文字的东西变成现实立体的东西,决定演员穿的服装、什么背景,什么环境,不但画好图,还得做出来。我一开始服装设计、道具干,现在摄制组越来越大,分工越来越细。
场景设计为演员艺术创作服务,就好比电影《红楼梦》里刘姥姥进大观园那一段,剧本里的场景没写那么多,也不一定是那样,但为了突出刘姥姥的性格特点,设计了一环扣一环的迷宫一样的房间场景,这都是美术师在起作用。
站酷网:一个好的电影美术师需要掌握哪些方面核心技能?
杨占家:首先要有生活,这个特别重要。就像作家写东西,得先知道真实的生活是什么样子。“生活是创作源泉”,电影里的场景,都来自生活。好比农村电影,对农村、农民的生活不熟悉,怎么设计农村的村庄、房子以及他们使用的道具,包括他们穿的服装,没有这个生活经验怎么设计?无处下手,画得再好也没用,所以生活经验和知识很重要。
很多人问为什么我可以画很快?因为积累很多。比如我们经常拍戏拍厨房灶台,南方和北方不一样,四川和浙江的也不一样。我走到哪里,那个时候没相机我就画,画完了用尺子量,进行标注,再遇到布景的时候,拿来就可以用。
以前我紧张到什么程度,全摄制组主创人去定外景,导演、摄影师、制片、美术,美术老被制片催。为什么,导演、摄影师看一眼行不行走了,美术师都得记下来,量一量,那时候我一个人,没助手,背个包,手忙脚乱。要不记这些,回到北京设计这些场景就会很难。
再一个是绘画基础,当年大学五年,两年是画人的图像、速写,练最基础的功夫。
电影美术师还一定要研究剧本,知道导演的要求,也能拿出自己的意见,选择出有什么场景,有哪些道具和服装设计,床放在哪里,墙上挂什么画,写字台、餐桌放在哪里,像菜单一样设计好,根据这个需要就去找,去设计。美术必须得对戏熟悉、对剧本熟悉,你还得拿出自己的意见,导演不管。
站酷网:作为北影厂知名古建筑专家,先后参与了北影厂宁荣府和明清街的设计,还主持设计浙江横店影视城的明清宫苑和江南水乡两大影视拍摄外景地。您理解的,电影美术设计行业里的建筑设计,和现实建筑设计的主要差异是什么?
杨占家:设计横店的明清宫苑的时候,就住在北影厂隔壁,可以到故宫拍照片,到图书馆找资料也方便。这个设计工作,带着十来个助手,干了两年多。我们是古建方法画,横店的设计院把图翻成工程图。设计和建造明清宫苑投入很大,建筑都是一比一的,没有缩小,不过只是做了主要场景,次要的不做。故宫很多材料,像汉白玉,成本非常高,明清宫苑都该用水泥,上面喷一些白沙子,看起来有点像。
江南水乡这个外景地,在电影里用处很广,吸收了周庄设计的优点,加上原来的从浙江农村拆迁过来的一些老农村大院子,景很丰富,有祠堂、戏台、餐馆、私塾、商店,能设计进去的我都设计进去。因为之前做过很多电影,知道什么景常用。
电影里的场景设计,就根据剧本的要求,加上导演的要求,要什么就设计什么景。这个景不一定合理,可以不完全按实际要求,要有助于剧情发展,给演员提供表演的舞台和艺术创作空间。现实建筑设计更讲究实用。
站酷网:从事电影美术设计工作46年,怎么保持这种不知疲倦又乐在其中的状态?
杨占家:我可能就是这样的人,在电影摄制组待,有时候挺苦,但是也有乐,跟年轻人整天在一起嘻嘻哈哈。老一辈美术师都是这样,勤勤恳恳干了一辈子。本来我想一直想干到八十,结果干到七十九腿不行了。长期画图,颈椎狭窄压迫神经腿就不好了,听说现在好多年轻人也有这个毛病。有我的教训,你们可以工作一段时间站起来晃晃脖子,别像我。
站酷网:现在电影产出节奏加快,更商业化,怎么看几十年电影美术设计行业的发展变化?
杨占家:现在电影制作好像是越来越简单了,不像之前花那么久的功夫研究。设备也在变先进,很小的屋子就可以拍起来,过去电影不行,摄影机、照明灯都特别大。现在电脑后期也很方便,很多景都不用真实搭建了。
站酷网:操刀很多知名电影美术,也教很多年轻的学生。中国电影美术人才情况怎么样?高校如何把理论教育和实践结合?
杨占家:电影学院有美术系,我上面说的基础课、画图等等都会教,但是这只能是做一些理论教学。真正搞设计的,还得到摄制组,得去实践中锻炼。教室里讲的知识都是虚的,以理论教学、系统教学为主,真正的实践要到摄制组,干一两部戏就有经验了。现在年轻人很聪明,跟一次摄制组,下面就熟了。
站酷网:一些电影美术师朋友说您是“知识分子的头脑,农民的生活”,所以生活里您是什么样的?现在的生活和工作状态怎么样?
杨占家:干了这么多年电影美术,生活里其实就你们看到的这个样子,哈哈,很简单。我从农村来,生活里已经养成吃苦的习惯,也一直都很认真地拼,不然大学哪能赶上在美院附中学三年的孩子们,他们的画特别棒。包括到北京电影制片厂当美术,也还是挺苦,过去拍电影没有额外酬金,拍电影就是你的工作,北影厂就是干这个的。港台片进来之后,才知道美术师还有稿费。现在脑子里有东西,身体干不动了,可以教学生、出书。

(下)《大闹天宫》设计图